
Mark Langos Interior Design
CODY ROAD / INTERIOR DESIGN & STYLING
Scroll ↓
PHOTOGRAPHER
Meghan Bob
STYLIST
Char Hatch Langos, Alejandro Duran
INTERIOR DESIGNER
Mark Langos
JR INTERIOR DESIGNER
Alejandro Duran
Kitchen Floor Plan
Kitchen Elevations
RCP/Lighting Plan
MB Tile Elevations
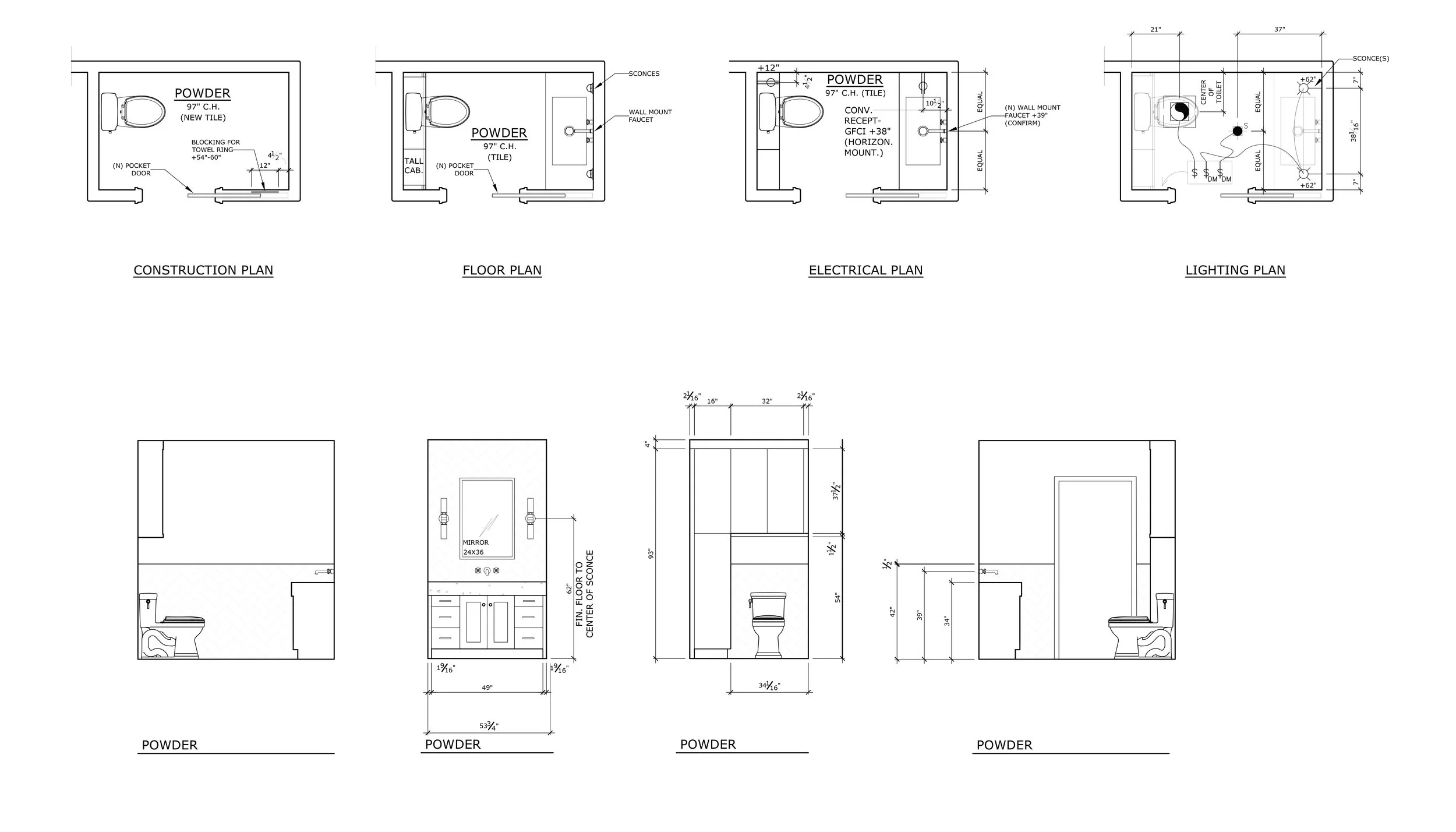
Powder Room / Elevations
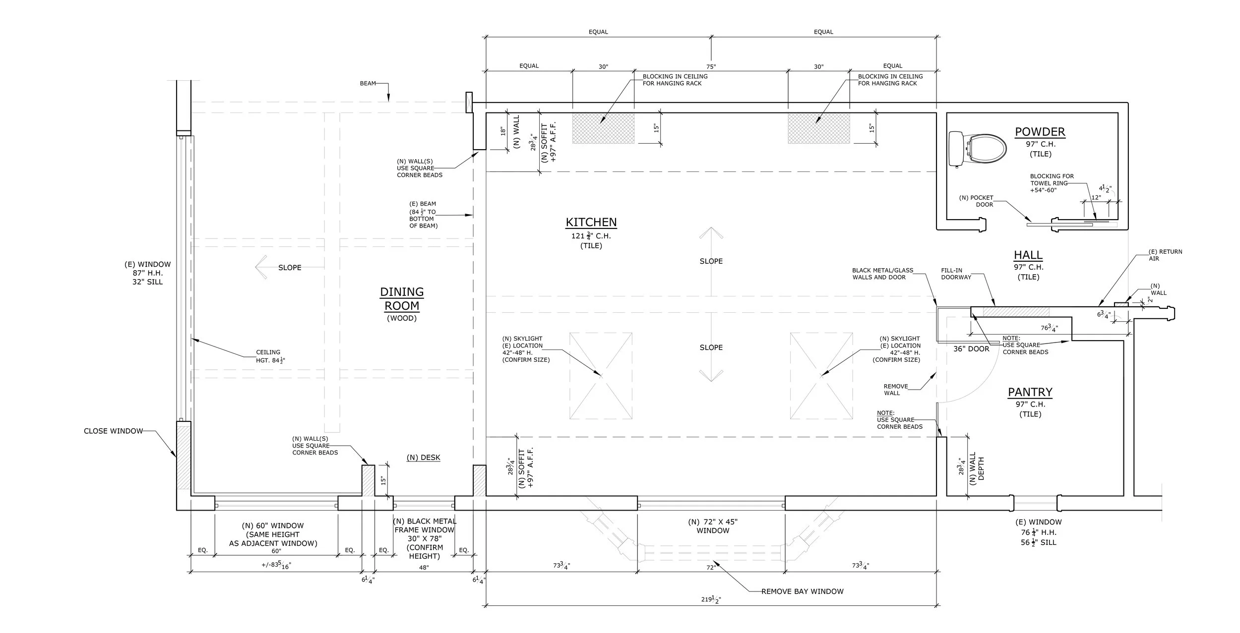
Kitchen Construction Plan
RCP/Lighting Plan
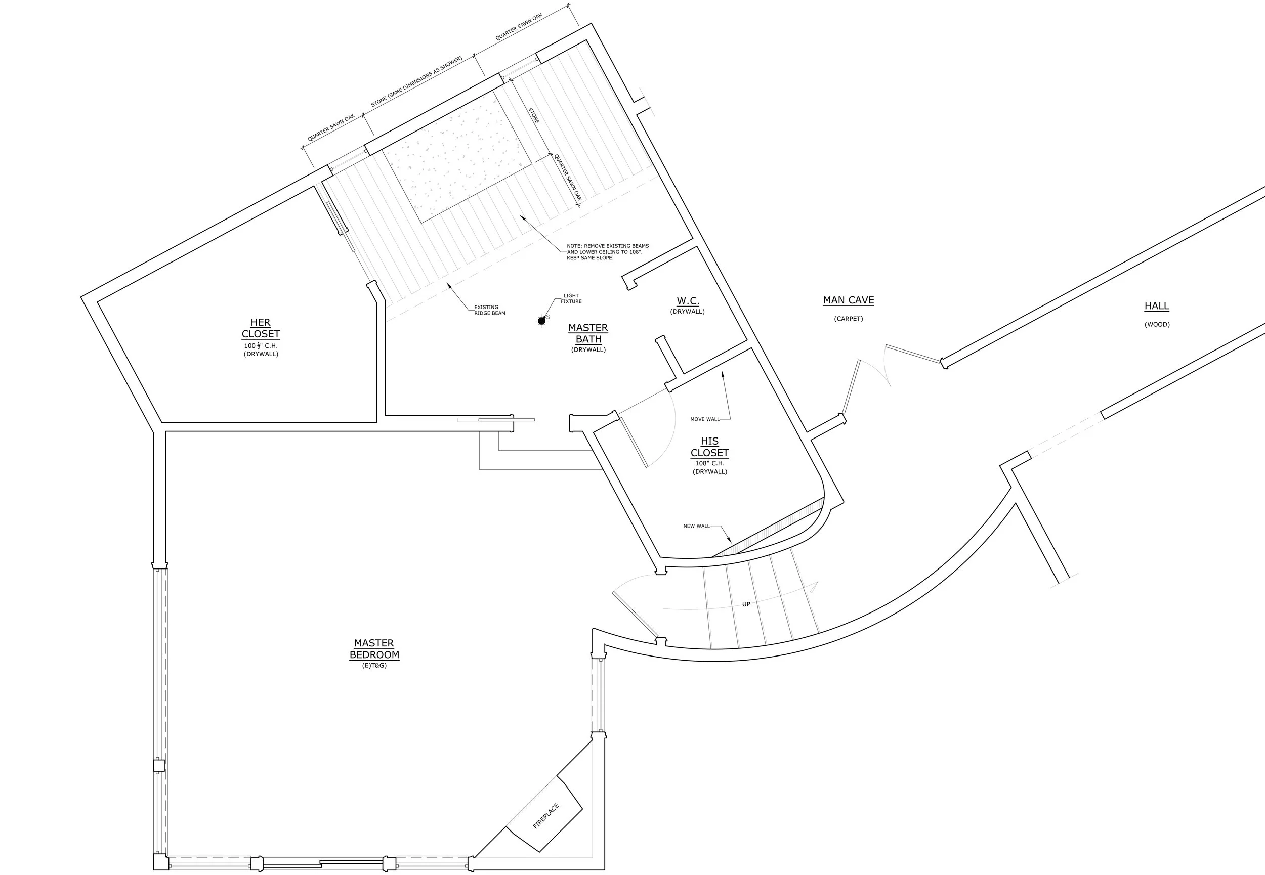
Main Bed/Bath Plan
Tile Plan
MB Elevations
KITCHEN ISLAND CONCEPT / RENDER